單鏈條板鏈斗式提升機提升礦石粉
雙鏈條板鏈斗式提升機提升銅屑
板鏈斗式提升機也叫板鏈式斗式提升機,簡稱板鏈提升機,它采用流入式喂料,物料流入料斗內靠板鏈提升到頂端,在物料重力作用下自行卸料。

NE型板鏈斗式提升機是由國外引進先進技術研制的新產品,主要技術參數符合機械部標準(JB3926-85)。采用自流式裝料,重力式卸料.鏈條是優質合金鋼高強度板式鏈條,耐磨而可靠。驅動部分采用硬齒面減速器。該機適用于中、大塊和有磨琢性的物料(如石灰石、水泥熟料、石膏、塊煤)的垂直輸送,物料溫度在250℃以下。
NE系列板鏈提升機在各工業應用極廣,正在逐步淘汰HL型等環鏈式提升機。該系列為流入式喂料,物料流入料斗內靠板鏈提升到頂端,在物料重力作用下自行卸料。NE系列板鏈斗式提升機共有11種型號:NE15、NE30、NE50、NE150、NE200、NE300、NE400、NE500、NE600、NE800。

板鏈斗式提升機分為單鏈條斗式提升機和雙鏈條斗式提升機,NE30板鏈斗式提升機及以下型號采用單排鏈,NE50板鏈斗式提升機以上型號采用雙排鏈。
單排鏈:即提升機箱體內只有裝一排鏈條。
雙排鏈:即提升機箱體內安裝兩排鏈條,鏈條掛在料斗兩邊,雙排板鏈斗式提升機提升量大,性能穩定,是水泥廠、鑄造廠、砂石廠、鋼廠等行業的常用提升輸送設備。NE50板鏈斗式提升機是常用的一個雙排鏈提升機型號,提升量60立方/小時,箱體尺寸約650*1240mm,鏈條節距152.4mm,料斗間距304.8mm,料斗寬度300mm。料斗運行速度約0.5m/s。

NE型板鏈斗式提升機的牽引件為板鏈,料斗以一定的間隔固定在牽引件上,牽引件經提升機頭部和底部的鏈輪,構成上升的有載分支和下降的無載分支的閉合環形系統,設置在提升機頭部的驅動裝置經頭部鏈輪將動力傳給牽引構件和料斗,物料經設置提升機底部的進料口進入提升機料斗,料斗將物料提升到頭部并在頭部將物料卸出,離開料斗的物料經設置在提升機頭部的卸料口卸出。提升機的料斗和牽引構件頭輪底輪安裝在全密封的殼體內,實現無粉塵污染的物料輸送。

1、板鏈提升機采用板鏈傳動,減少人工操作,增加工作效率,,提升量為15-800立方/時,提升高度可達60米。
2、對物料的種類、特性要求少,不僅能提升一般的粉料、小顆粒料,而且可提升磨琢性較大的物料,要求溫度≤200°C。
3、采取流入式喂料、誘導式卸料,大容量的料斗密集型布置,在物料提升時幾乎無回料和挖料現象,因此無效功率少,比環鏈提升機節省功率30%。
4、結構鋼性好,精度高。機殼經折邊和中間壓凸,經焊接后,剛性好且外觀漂亮,產品表面經過噴漆處理,表面光滑,不易掉漆。

1、上部裝置:安裝有軌道(雙排道),防止鏈條擺動,逆止器,防止料斗回轉,物料阻滿下部機殼,卸料口裝有橡膠板防止回料。
2、中間節:部分中間節裝有軌道(雙排節),以防止鏈條工作中擺動,部分中間節裝有檢修門以便維修。
3、下部裝置:安裝有張緊裝置, NE15~NE50采用彈簧張緊,NE100~NE800采用重錘箱張緊。
4、上下鏈輪采用 ZG310-570。整體調質,HB229-269齒面淬火HRC40~48。
5、板鏈:鏈板采用 45 # HRC36~42,板鏈提升機鏈條采用合金鋼材經先進的熱處理手段加工而成的高強度耐磨鏈條, 正常連續使用下,確保輸送鏈條使用壽命3-5年。

| 型號 | 提升能力 (m³/h) |
斗速(m/s) | 主軸轉數(n/min) | 料 斗 | 鏈條節距 (mm) |
運行部件重量(Kg/m) | 物料塊度(mm) | ||||||
|---|---|---|---|---|---|---|---|---|---|---|---|---|---|
| 容積 (L) |
斗寬 (mm) |
斗距 (mm) |
|||||||||||
| 允許所占百分比% | |||||||||||||
| 10 | 25 | 50 | 75 | 100 | |||||||||
| NE15 | 15 | 約0.5 | 16.54 | 2.5 | 250 | 203.2 | 101.6 | 27.5 | 65 | 50 | 40 | 30 | 25 |
| NE30 | 30 | 約0.5 | 16.54 | 7.8 | 300 | 304.8 | 152.4 | 35 | 90 | 75 | 58 | 47 | 40 |
| NE50 | 60 | 約0.5 | 16.54 | 15.7 | 300 | 304.8 | 152.4 | 64 | 90 | 75 | 58 | 47 | 40 |
| NE100 | 110 | 約0.5 | 14.13 | 35 | 400 | 400 | 200 | 89 | 130 | 105 | 80 | 65 | 55 |
| NE150 | 170 | 約0.5 | 14.13 | 52.2 | 600 | 400 | 200 | 112.5 | 130 | 105 | 80 | 65 | 55 |
| NE200 | 210 | 約0.5 | 10.9 | 84.6 | 600 | 500 | 250 | 134 | 170 | 135 | 100 | 85 | 70 |
| NE300 | 320 | 約0.5 | 10.9 | 127.5 | 700 | 500 | 250 | 188 | 170 | 135 | 100 | 85 | 70 |
| NE400 | 380 | 約0.5 | 8.3 | 182.5 | 700 | 600 | 300 | 205 | 205 | 165 | 125 | 105 | 90 |
| NE500 | 470 | 約0.5 | 7.1 | 260.9 | 700 | 700 | 350 | 223 | 240 | 190 | 145 | 120 | 100 |
| NE600 | 600 | 約0.5 | 7.1 | 330.2 | 800 | 700 | 350 | 350 | 240 | 190 | 145 | 120 | 100 |
| NE800 | 800 | 約0.5 | 6.2 | 501.8 | 800 | 800 | 400 | 313 | 270 | 220 | 165 | 135 | 110 |
型號說明:NE板鏈斗式提升機是通過牽引件上料斗來輸送物料的,因此計算方式就是料斗的容積乘以每小時通過的料斗數量。舉例來說,NE30鏈條運行速度約0.5m/s,斗距304.8mm,料斗容積應該計算料斗中陰影部分的容積,經過計算大約為5.5L,技術參數表中只為參考。
(0.5*3600)/304.8*5.5=32.48
即NE30斗式提升機輸送量理論值為32.48立方/小時,實際生產中會稍微小于這個量。

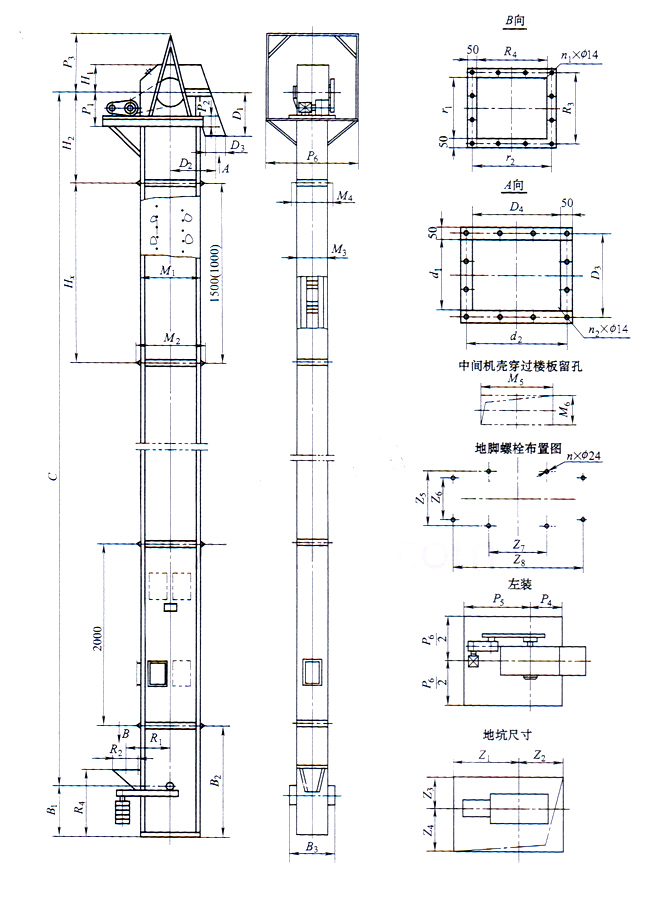
| 斗提機型號 | TD100 | TD160 | TD250 | TD315 | TD400 | TD500 | |
| 輪廓高度L | C+1100 | C+1363 | C+1535 | C+1640 | C+1790 | C+1865 | |
| 整機結構 | H H4 S |
C-820 600 200 |
C-930 700 250 |
C-1250 800 250 |
C-1245 850 250 |
C-1500 950 250 |
C-1700 900 250 |
| 料斗 | t b |
200 100 |
350/280 160 |
450/360 250 |
500/400 315 |
560/480 400 |
625/500 500 |
| 地腳孔 | a3 b3 n3 d3 |
200 310 8 Φ18 |
250 400 8 Φ18 |
300 538 8 Φ18 |
300 648 8 Φ18 |
400 768 8 Φ22 |
400 900 8 Φ22 |
| 上、下部機殼及外形輪廓 | H3 H6 A2 A6 A7 B2 B4 B5 |
970 1210 692 776 1050 220 370 330 |
1185 1500 985 996 1235 295 461 475 |
1320 1800 1175 1266 1600 394 596 610 |
1488 1800 1200 1266 1700 440 706 710 |
1500 2000 1350 1558 1980 535 828 835 |
1655 2300 1410 1610 2200 605 980 1000 |
| 中部機殼 | A4 A5 B3 |
776 805 390 |
982 1021 525 |
1152 1302 682 |
1254 1400 794 |
1548 1580 920 |
1570 1630 1040 |
| 卸料口 | H1 A3 a1 a2 a3 b1 b2 b3 n1 d1 |
520 438 334 120 390 224 95 280 12 Φ12 |
630 548 365 150 431 315 150 381 12 Φ12 |
750 713 600 200 676 450 200 526 12 Φ12 |
795 763 560 230 638 560 230 638 12 Φ12 |
850 824 670 295 758 670 295 758 12 Φ14 |
1000 885 700 355 880 780 300 800 12 Φ18 |

| 型號 | 節距 | 滾子直徑 | 銷軸直徑 | 銷軸長度 | 內節內寬 | 鏈板 | 龜坂寬 | 安裝孔 | 孔徑 | 備注 |
| P | D | d | L | W | H×T | H1 | L1×L2 | d1 | ||
| mm | mm | mm | mm | mm | mm | mm | mm | mm | ||
| NE15 | 101.6 | 26.5 | 11.5 | 70 | 27 | 35×6 | 40×90 | 12 | 圖示一 | |
| NE30 | 152.4 | 36 | 15.5 | 90 | 36.5 | 50×8 | 60×120 | 14 | 圖示一 | |
| NE50 | 152.4 | 36 | 15.5 | 90 | 36.5 | 50×8 | 110 | 75×70 | 14 | 圖示二 |
| NE100 | 200 | 44.5 | 19.1 | 120 | 51.8 | 60×10 | 125 | 100×80 | 18 | 圖示二 |
| NE150 | 200 | 48.5 | 22.2 | 126 | 57.6 | 75×10 | 125 | 100×80 | 18 | 圖示二 |
| NE200 | 250 | 63.5 | 31.75 | 146 | 67.4 | 90×12 | 150 | 140×100 | 18 | 圖示二 |
| NE300 | 250 | 70 | 35 | 170 | 75 | 100×16 | 150 | 140×100 | 18 | 圖示二 |
| NE400 | 300 | 70 | 35 | 170 | 75 | 100×16 | 180 | 170×125 | 22 | 圖示二 |
| NE500 | 350 | 140 | 36 | 152 | 66 | 102×14 | 260 | 150×160 | 22 | 圖示二 |
| NE600 | 350 | 170 | 44 | 169 | 78 | 122×16 | 220 | 160×160 | 22 | 圖示二 |
| NE800 | 400 | 170 | 44 | 169 | 78 | 122×16 | 220 | 200×160 | 22 | 圖示二 |
| 型號 | NE15 | NE30 | NE50 | NE100 | NE150 | NE200 | |
| 機殼形式 | I | I | I | I | I | II | |
| 上機殼 | H1 | 523 | 840 | 665 | 741 | 766 | 968 |
| H2 | 1342 | 2265 | 1880 | 2000 | 1700 | 1780 | |
| 卸料口 | D1 | 900 | 955 | 1100 | 1475 | 1300 | 1650 |
| D2 | 800 | 1000 | 1000 | 1200 | 1200 | 1500 | |
| D3 | 250 | 300 | 350 | 350 | 400 | 550 | |
| D4 | 300 | 350 | 400 | 500 | 650 | 650 | |
| d1 | 306/3 | 356/3 | 406/3 | 406/3 | 456/3 | 606/4 | |
| d2 | 356/3 | 406/3 | 456/3 | 556/4 | 706/5 | 706/5 | |
| 平臺 | p1 | 1000 | 602 | 777 | 803 | 1200 | 1280 |
| p2 | 104 | 104 | 104 | 130 | 130 | 144 | |
| p3 | 1404 | 2403 | 1827 | 1740 | 1740 | 1864 | |
| p4 | 521 | 620 | 616 | 729 | 720 | 870 | |
| p5 | 1579 | 2041 | 2236 | 2380 | 23800 | 2730 | |
| p6 | 2300 | 2500 | 2500 | 2600 | 3300 | 4100 | |
| 中間機殼 | M1 | 1050 | 1240 | 1240 | 1450 | 1450 | 1750 |
| M2 | 1156 | 1340 | 1348 | 1598 | 1582 | 1888 | |
| M3 | 450 | 500 | 650 | 800 | 1060 | 1120 | |
| M4 | 556 | 600 | 780 | 948 | 1196 | 1280 | |
| M5 | 1250 | 1440 | 1440 | 1680 | 1680 | 1980 | |
| M6 | 650 | 700 | 850 | 1030 | 1290 | 1350 | |
| 喂料口 | R1 | 800 | 970 | 970 | 1125 | 1075 | 1300 |
| R2 | 250 | 300 | 280 | 400 | 500 | 550 | |
| R3 | 250 | 300 | 300 | 400 | 600 | 560 | |
| R4 | 1350 | 1650 | 1700 | 2000 | 2050 | 2400 | |
| r1 | 306/3 | 356/3 | 336/3 | 456/3 | 556/4 | 620/4 | |
| r2 | 306/3 | 356/3 | 356/3 | 456/3 | 656/5 | 630/4 | |
| 下機殼 | B1 | 600 | 750 | 750 | 850 | 900 | 1050 |
| B2 | 2440 | 2440 | 2500 | 2500 | 2500 | 3000 | |
| B3 | 830 | 970 | 996 | 1148 | 1632 | 2102 | |
| 基礎尺寸 | Z1 | 1000 | 1200 | 1200 | 1400 | 1400 | 1670 |
| Z2 | 1400 | 1500 | 1500 | 1700 | 1700 | 1850 | |
| Z3 | 950 | 1000 | 1100 | 1200 | 1350 | 1350 | |
| Z4 | 1300 | 1400 | 1700 | 1900 | 2350 | 2350 | |
| Z5 | 554 | 594 | 744 | 916 | 1176 | 1250 | |
| Z6 | 400/1 | 450/1 | 550/1 | 600/1 | 400/1 | 800/1 | |
| Z7 | 1144 | 1334 | 1334 | 1566 | 1566 | 1880 | |
| Z8 | 500/1 | 600/1 | 600/1 | 700/1 | 700/1 | 940/2 | |
NE型板鏈斗式提升機主要適用于輸送生料,水泥,煤炭,焦炭,石灰石,干粘土,熟料,碎石,砂子,化肥,糧食等粉狀、顆粒狀、小塊狀磨琢性或無磨琢性物料。廣泛應用于礦山、冶金、建材、煤炭、水電、水泥等行業部門垂直提升塊狀、粉狀且物料溫度不超過250℃以下的物料。



、1物料的形態:物料是粉狀還是顆粒狀還是小塊狀。
2、物料的物理性質:物料有沒有吸附性或者粘稠度,是否含水。
3、物料的比重:一般板鏈斗式提升機參數都是針對堆積比重在1.6以下的物料設計和計算的,太大的物料比重需要進行牽引力和傳動部分抗拉強度的計算。
4、單位時間內的輸送量:一般來說,物料的形態直接決定物料的卸料方式,常用規律為粉狀物料采用離心拋射卸料、塊狀物料采用重力卸料,而卸料方式的不同決定斗式提升機采用的料斗形式的不同,離心拋射卸料多采用淺斗和弧形斗,而重力卸料需采用深斗。
選型過程如下:物料比重→傳動方式(斗提型號)→物料性質→卸料方式→料斗形式→該系列板鏈提升機的提升量→確定機型。
板鏈斗式提升機產品制造工藝:等離子/激光下料,沖孔,數控折彎,機器人自動焊接工藝。箱體沖壓成形,中間箱體四道筋,采用全焊方式,整體剛性及密封性較強。
大漢機械生產的斗式提升機產品供貨內容:頭箱,尾箱,中間箱,電機,減速機,逆止器,電機防雨罩,傳動皮帶/鏈條防護罩,護欄,平臺,吊裝件,配重箱(包括但不限于以上內容,具體以實際供貨內容為準。)


Copyright ? 2008-2024 螺旋輸送機廠家-新鄉市大漢振動機械有限公司 All Rights Reserved 版權所有
網站備案號:豫ICP備09002479號-47







